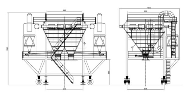
サイクロン式防塵ホッパー

图片14.jpg

● サイクロン式防塵ホッパーの強みと弱み ●

簡易で小型であり、特殊な付属装置が不要

低コストかつ抵抗力が低めのほか、装置内は可動部品がないためメンテナンスしやすい。

80%以上の高分離効率であり、5-15μm以上の粉じんを捕集できる。

5μm以下の粉じん捕集率が低い。

サイクロン部は摩耗しやすい及び交換しにくい。